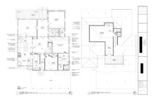
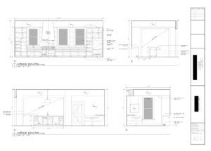
Lavaca House

Lavaca House is a 120-year-old house in the oldest existing neighborhood in San Antonio, TX. I renovated it during the pandemic and there isn’t a square inch of this house — inside or outside — that wasn’t fixed or improved. It took 18 months of blood, sweat, tears…..and frustration. Learned a lot and the end product is gorgeous.